Логотип

AvisБТИ (укр.версия)

Рейтинг:
  • 4,0
  • 368
Лицензия: Бесплатно
Версия:1.5.210100
Дата обновления:29 марта 2025 г. 3:00
Платформа ОС:Windows 11, 10, 8.1, 8, 7, …
Язык:Русский
Разработчик: Stargis
Размер:40.66 МБ
Загрузок:1
  • Бесплатно
  • Windows
85

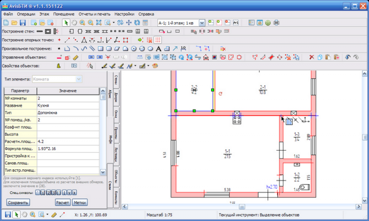
AvisБТИ (укр.версия) – это лучшее решение для БТИ, позволяющее удобно и быстро сформировать поэтажные и ситуационные планы, автоматически подготовить документацию по технической инвентаризации объектов недвижимости.

Быстро, правильно и просто создать технический паспорт по любому объекту недвижимости – основная цель программы. Построения делаются очень просто, вы потратите минимальное время на освоение программы, имея при этом весь набор необходимых и привычных инструментов! Нарисовав поэтажный план и схему участка, вы автоматически получаете готовые заполненные ведомости и журналы, полностью соответствующие нынешнему украинскому законодательству.

Основные возможности программы

  • Создание поэтажных планов любых объектов недвижимости (жилые дома, садовые домики, квартиры, нежилые помещения и здания, общественные здания, промышленные здания и площадки, многоэтажные дома, гаражи, укрытия).
  • Создание схемы земельного участка условными знаками 1:500 масштаба.
  • Построение с помощью привычных конструкций: стены, двери, окна и др.
  • Построение с помощью базовых фигур при необходимости.
  • Режимы построений: визуальное на плане или путем точных замеров.
  • Векторизация подложки.
  • Автоматическое распознавание помещений, промеров, формул площадей.
  • Создание меток и подписей к объектам.
  • Печать поэтажных планов и схем любых форматов (до А0).
  • Формирование всего набора отчетов (на выдачу и инв.дело) в соответствии с украинским законодательством.
  • Импорт проектов и планов, подготовленных в других чертежных программах (Автокад, Мапинфо, IN4/XML).
  • Импорт сканированных изображений для использования в качестве подложки.
  • Готовая библиотека объектов построения (стены, двери, окна, колонны, сантехника, вентиляция, проемы, лестницы, лифты и т.д.)
  • Библиотека условных знаков 1:500 масштаба
  • Библиотека материалов зданий и сооружений
  • Демо версия программы без ограничений на 30 дней!

Минимальное время на освоение программы. Удобные и привычные инструменты проектирования. Библиотеки объектов. Полный набор отчетов в соответствии с законами Украины. Совместимость с другими программами.

Бесплатная активация на сайте компании или по емайл.