Логотип

Профиль

Рейтинг:
  • 4,0
  • 358
Лицензия: Бесплатно
Версия:3
Дата обновления:29 марта 2025 г. 3:00
Платформа ОС:Windows 11, 10, 8.1, 8, 7, …
Язык:Русский
Разработчик: Weisskrahe
Размер:0.54 МБ
Загрузок:2
  • Бесплатно
  • Windows
97

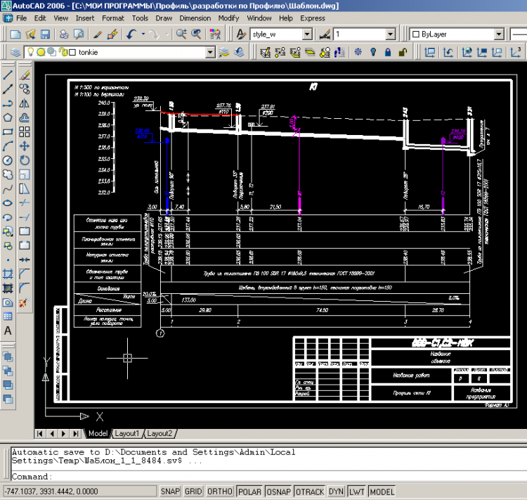
Профиль - это программа простая и нетребовательная. Оформление чертежей в соответствии с ГОСТ 21.604-82, ГОСТ 21.101-97. Кроме того, разные мелочи очень гибко настраиваются. Профили чертятся в масштабе, по слоям. На профилях показываются все пересечки и подключения (если Вы их указали в исходных данных). Трубопроводы могут быть любого назначения: водопровод, канализация, теплотрасса, газопровод, нефтепровод, и.т.д. Количество и длина профилей не ограничены.

Масштабы профилей (по горизонтали и вертикали) можно выбрать по своему усмотрению. Чертежи автоматически компонуются по листам А3 или А2 (на выбор).Длинные профили могут быть автоматически разбиты по листам А3 или А2, либо без разбивки. Готовые чертежи представляют собой набор стандартных примитивов AutoCAD, поэтому при желании их легко можно править вручную обычными средствами AutoCAD. Исходные данные вводятся и сохраняются в Excel-файле. Данная программа является надстройкой к программе AutoCAD.

В пассивном состоянии программа Профиль не занимает оперативную память и не влияет на производительность Автокада. Она подгружается в память только по команде пользователя. К программе прилагается подробная инструкция с картинками.